![]() |
![]() |
![]() |
![]() |
![]() |





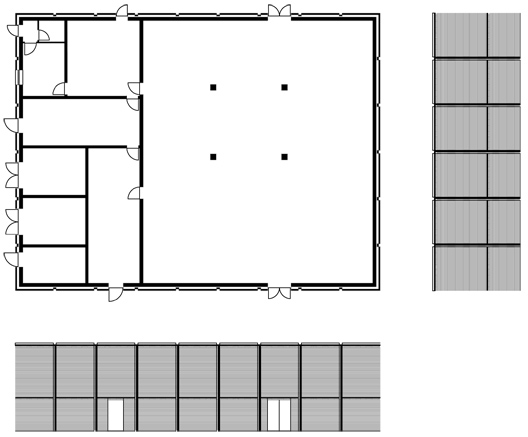
BLOCKSTATION AN DER UNI
Anschrift:
Hochschulring / Kuhgrabenweg, Bremen
Bauherr:
Wesernetz Bremen GmbH
Ausführung:
2023
Partner:
PlanungXgruppe, Bremen
Die Blockstation befindet sich am Hochschulring in direkter Nachbarschaft der Feuerwache 7. Das Gebäude ist ein Funktionsbauwerk ohne Aufenthaltsräume und enthält Pumpen und Transformatoren, die für den Betrieb der Fernwärmeverteilung erforderlich sind. Das Gebäude ist ein massives Technikbauwerk mit kraftvoller Architektur und steht dabei in der Tradition der Gestaltung von Versorgungsbauten der 20er Jahre. Die äußere Gestaltung orientiert sich in Materialwahl und Farbgebung an der gegenüber liegenden Feuerwache. Um ein einfaches nach außen hin geschlossenes Gebäudevolumen zu präsentieren, wird die Fassade des niedrigeren Gebäudeteils bis auf die Attikahöhe des Hauptbaus erhöht und durch vertikale Lisenen strukturiert. Die massive wartungsfreie Verblender-Fassade hält den Witterungseinflüssen und dem Gebrauch langfristig stand und steht für Nachhaltigkeit und minimierte Gebäudeunterhaltskosten. Sichtbeton-Fertigteile als Attikaabdeckung geben den Fassaden einen oberen optischen Abschluss. Die umlaufend zurückgesetzte Grenadierschicht auf Türsturzhöhe gliedert die Fassade im Verhältnis 1:2 und durchgängig 3,00 m breite Verblenderfelder geben der Fassade eine angenehme Proportion und nehmen dem Volumen die Schwere. Die Robustheit des Technikbauwerks findet eine Entsprechung im Blockverband im Normalformat. Auf dem Dach ist eine PV-Anlage möglich, diese würde aufgrund der Höhe der Attikaausbildung nicht in Erscheinung treten.